Bilocale in vendita

Brembate, Via delle gerre - Grignano
€ 75.000
2 locali 2 locali
77 Mq 77 Mq
2 bagni 2 bagni

Bilocale in vendita

Brembate, Via delle gerre - Grignano

Descrizione annuncio

COSE DA SAPERE SULLA CASA
2 Locali – Studio – Giardino Privato – Doppi Servizi – Taverna – Box Doppio – Costruzione Del 2003

VENDESI NUDA PROPRIETA’:
La nuda proprietà è un diritto di proprietà che si riferisce esclusivamente alla proprietà effettiva di un bene, senza il diritto di godimento o uso dell’oggetto in questione; il nuovo proprietario otterrà il pieno godimento del bene alla cessazione del diritto di usufrutto del vecchio proprietario.
Il vantaggio per l’acquirente deriva dalla possibilità di avere un immobile ad un prezzo più conveniente rispetto ad altri immobili simili venduti a prezzo di mercato con a disposizione un immobile da sfruttare in vista di necessità future, un semplice esempio può essere un investimento per la pensione o per i figli una volta cresciuti.

PARTICOLARITA’ E DESCRIZIONE
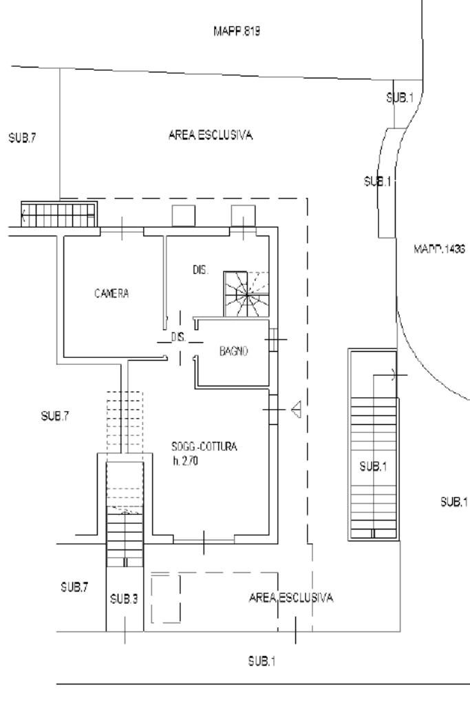
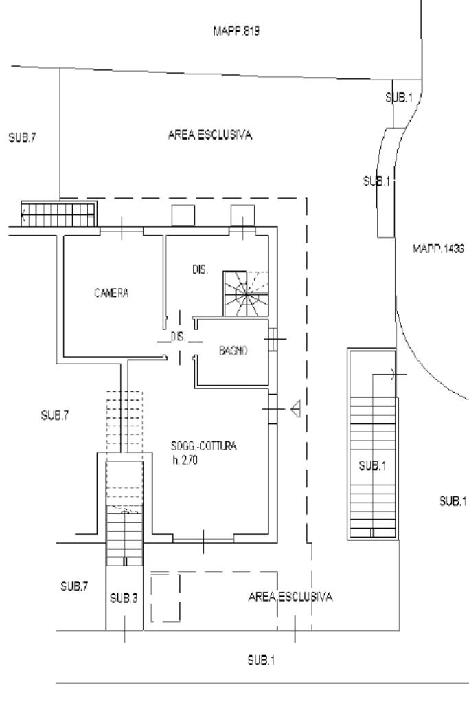
Trattasi di appartamento bilocale sito al piano terra con ingresso indipendente, giardino su 3 lati, taverna, doppi servizi e box doppio direttamente collegato dal piano interrato.
All’ingresso troviamo l’accogliente soggiorno con cucina a vista, dotato di porta finestra che conduce al giardino di pertinenza.
Proseguendo tramite il disimpegno accediamo alla zona notte, composta dal bagno di servizio, camera matrimoniale e studio, quest’ultimi dotati entrambi di portafinestra che conducono allo spazio esterno.
Tramite lo studio possiamo raggiungere la taverna, dotata di un secondo bagno e collegata direttamente al box doppio.

UBICAZIONE E CONTESTO
L'immobile è situato a pochi minuti dal centro di Brembate e da tutti i principali servizi che il comune offre.
Brembate è dotato di tutti i principali servizi: scuole, mezzi pubblici, campo sportivo, farmacia, supermercato e varie attività commerciali a pochi minuti dal centro commerciale il Globo.

Mostra tutto

Nelle vicinanze

Trasporto pubblico Trasporto pubblico
Capriate
Capriate
610 m
Trasporto pubblico
640 m
Trenino Thomas
Trenino Thomas
1,2 Km
Mine Train
Mine Train
1,3 Km
Ricariche auto elettriche Ricariche auto elettriche
Iper Brembate
820 m
EnelX EVA+ Conad Capriate San Gervaso
1,1 Km
Villa Appiani
1,9 Km
Evbility Filago Via Moro
2,4 Km
Scuole Scuole
Scuola elementare "Alessandro Manzoni"
1,6 Km
Scuola elementare "Ai nostri caduti"
2,2 Km
Scuola media statale Pietro Nenni
2,6 Km
ITCGP Iacopo Nizzola
2,9 Km
Farmacia Farmacia
Iper Farma
870 m
Farmacia
2,3 Km
Farmacia Fumagalli
2,6 Km
Parafarmacia Conad
2,7 Km
Supermercati Supermercati
Iper
890 m
Conad
1,2 Km
Supermercati
1,2 Km
COOP
2,2 Km
Crai
2,2 Km
Negozi Negozi
OVS
1,0 Km
Bar Bar
Bar
1,4 Km
P Cube3
1,9 Km
Al Vecchio Lavatoio
2,0 Km
Giambellino
2,4 Km
Live Club
2,8 Km
Ristoranti Ristoranti
Quei Bravi Ragazzi
550 m
Roadhouse
700 m
Ristorante Le Golf
970 m
Il Vigneto
1,7 Km
PizzaClub No Limits
1,7 Km
Mostra tutto

Caratteristiche

Rif.:
61116763
Piano:
Terra di 3
Totale piani:
3
Box:
1
Posti auto:
2
Camere da letto:
1
Mostra tutto
Prezzo Prezzo
€ 75.000
Rata mutuo Rata mutuo
€ 354 / mese
Spese annue Spese annue
€ 700
Proponi il tuo prezzoProponi il tuo prezzo

Classe Energetica

Questo immobile è esente da classe energetica
Anno di costruzione:
2000
Riscaldamento:
Autonomo
Tipo impianto:
A radiatori
Tipo alimentazione:
Metano

Ti interessa visionare l'immobile?

Fissa un appuntamento  Fissa un appuntamento

Richiedi informazioni

Clicca su Leggi per aprire l'informativa
* Questi campi sono obbligatori

Calcola il tuo mutuo

Semplice e senza impegno
Anticipo

( % )
Mutuo

( % )

pochi semplici passi

inserisci i tuoi dati
Questionario completato
Grazie per aver richiesto un appuntamento senza impegno con un nostro Consulente del Credito e Assicurativo.

Hai inserito correttamente tutti i dati necessari e a breve riceverai una e-mail con un link da convalidare per inviare i tuoi dati.
Affiliato
Immobiliare Abda Srl
Via Vittorio Veneto, 9 24042 Capriate San Gervasio (BG)

Il nostro staff


  • Jesus Massimo Bergamaschi
    Affiliato

  • Sara Freni
    Collaboratrice

  • Kevin Maffolini
    Affiliato

  • Nicole Monella
    Collaboratrice
Via Vittorio Veneto, 9 24042 Capriate San Gervasio (BG)
Zona: Capriate San gervasio
Mostra su mappa
Orari: ORARIO DI APERTURA: Dal Lunedì al Venerdì 9.00 - 12.30 / 14.30 - 20.00 Sabato 9.00 - 12.30
Affiliato
Immobiliare Abda Srl
Via Vittorio Veneto, 9 24042 Capriate San Gervasio (BG)

2025 Tecnocasa Franchising S.p.A. - P. IVA 08365160152 - Via Monte Bianco 60/A 20089 Rozzano (MI). Ogni agenzia ha un proprio titolare ed è autonoma. Privacy policy | Policy utilizzo | Cookie policy