Bifamiliare in vendita

Brembate, Via S. Gervasio - Grignano
€ 550.000
Prezzo aggiornato
6 locali 6 locali
330 Mq 330 Mq
2 bagni 2 bagni

Bifamiliare in vendita

Brembate, Via S. Gervasio - Grignano

Descrizione annuncio

COSE DA SAPERE SULLA CASA

Villa bifamiliare – ristrutturata nel 2024 – libera su 4 lati – box – cantina

PARTICOLARITA' E DESCRIZIONE

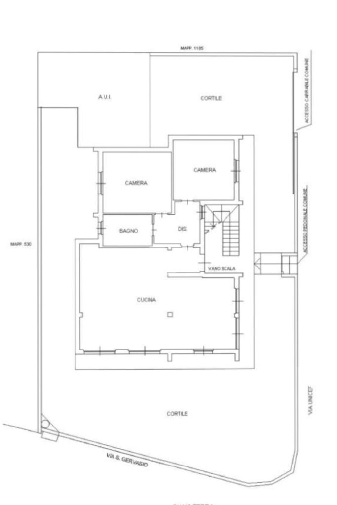
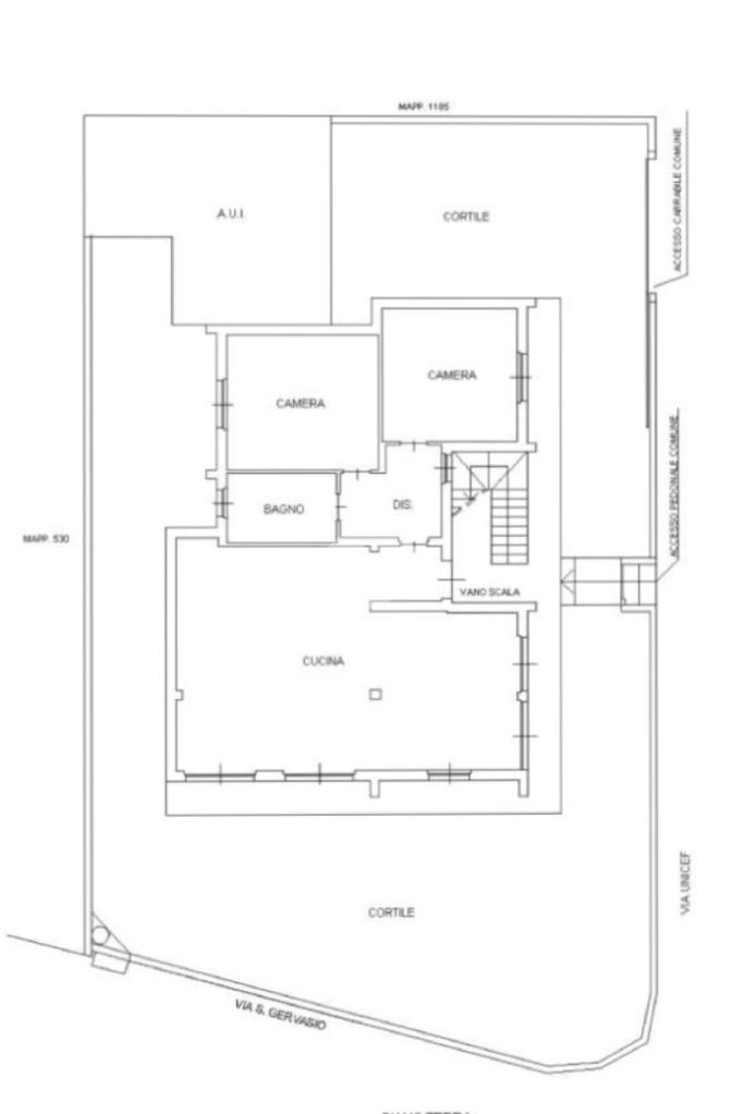
APPARTAMENTO PIANO TERRA: Appartamento trilocale composto da ampio soggiorno con cucina a vista abitabile, disposto di porte finestre che conducono al giardino esterno di proprietà privata. Tramite disimpegno si accede alla zona notte composta da due ampie camere matrimoniali e al bagno di servizio

APPARTAMENTO PRIMO PIANO: Appartamento trilocale con soggiorno e cucina open space, dalla quale si accede all’ampio terrazzo di pertinenza. Tramite disimpegno si accede alla zona notte composta da due ampie camere matrimoniali e dal bagno di servizio

La soluzione è una villa bifamiliare è stata interamente ristrutturata, attualmente riscaldata da split collegati alla pompa di calore, vi è la possibilità di installare anche la Caldaia in quanto è presente la predisposizione per il riscaldamento a metano.

Nella parte esterna è presente un pergolato che può essere utilizzato come posto auto coperto.

Vi è la possibilità di acquistare tutto l’arredamento visibile nell’annuncio per un prezzo di euro 85.000,00

UBICAZIONE E CONTESTO

L'immobile è situato a pochi minuti dal centro di Brembate e da tutti i principali servizi che il comune offre. Brembate è dotato di tutti i principali servizi: Scuole, Mezzi pubblici, Campo Sportivo, Farmacia, Supermercato, Autostrada e varie attività commerciali a pochi minuti dal centro commerciale il Globo.

Mostra tutto

Nelle vicinanze

Trasporto pubblico Trasporto pubblico
Trasporto pubblico
470 m
Capriate
Capriate
680 m
Trenino Thomas
Trenino Thomas
1,2 Km
Mine Train
Mine Train
1,3 Km
Ricariche auto elettriche Ricariche auto elettriche
EnelX EVA+ Conad Capriate San Gervaso
760 m
Iper Brembate
880 m
Villa Appiani
1,5 Km
Evbility Filago Via Moro
2,5 Km
Scuole Scuole
Scuola elementare "Alessandro Manzoni"
1,2 Km
Scuola elementare "Ai nostri caduti"
1,9 Km
Scuola media statale Pietro Nenni
2,2 Km
ITCGP Iacopo Nizzola
2,5 Km
Farmacia Farmacia
Iper Farma
1,0 Km
Farmacia
2,0 Km
Parafarmacia Conad
2,4 Km
Farmacia Fumagalli
2,7 Km
Supermercati Supermercati
Conad
780 m
Supermercati
830 m
Iper
1,0 Km
COOP
1,8 Km
Crai
1,9 Km
Negozi Negozi
OVS
1,2 Km
Bar Bar
Bar
990 m
P Cube3
1,6 Km
Al Vecchio Lavatoio
1,6 Km
Giambellino
2,2 Km
Live Club
2,6 Km
Ristoranti Ristoranti
Quei Bravi Ragazzi
530 m
Roadhouse
540 m
Ristorante Le Golf
1,0 Km
Il Vigneto
1,3 Km
PizzaClub No Limits
1,5 Km
Mostra tutto

Caratteristiche

Rif.:
61165919
Piano:
Su più livelli di 2
Totale piani:
2
Box:
1
Posti auto:
2
Balconi:
2
Mostra tutto
Prezzo Prezzo
€ 550.000
Rata mutuo Rata mutuo
€ 2.593 / mese
Spese annue Spese annue
€ 0
Proponi il tuo prezzoProponi il tuo prezzo

Classe Energetica

B
B
B
B
B
B
B
B
B
EP invernale del fabbricato:
EP estiva del fabbricato:
Anno di costruzione:
2024
Riscaldamento:
Autonomo
Tipo impianto:
Ad aria
Tipo alimentazione:
Aria

Prezzo ridotto di €1 (5%%)

Ti interessa visionare l'immobile?

Fissa un appuntamento  Fissa un appuntamento

Richiedi informazioni

Clicca su Leggi per aprire l'informativa
* Questi campi sono obbligatori

Calcola il tuo mutuo

Semplice e senza impegno
Anticipo

( % )
Mutuo

( % )

pochi semplici passi

inserisci i tuoi dati
Questionario completato
Grazie per aver richiesto un appuntamento senza impegno con un nostro Consulente del Credito e Assicurativo.

Hai inserito correttamente tutti i dati necessari e a breve riceverai una e-mail con un link da convalidare per inviare i tuoi dati.
Affiliato
Immobiliare Abda Srl
Via Vittorio Veneto, 9 24042 Capriate San Gervasio (BG)

Il nostro staff


  • Jesus Massimo Bergamaschi
    Affiliato

  • Sara Freni
    Collaboratrice

  • Kevin Maffolini
    Affiliato

  • Nicole Monella
    Responsabile
Via Vittorio Veneto, 9 24042 Capriate San Gervasio (BG)
Zona: Capriate San gervasio
Mostra su mappa
Orari: ORARIO DI APERTURA: Dal Lunedì al Venerdì 9.00 - 12.30 / 14.30 - 20.00 Sabato 9.00 - 12.30
Affiliato
Immobiliare Abda Srl
Via Vittorio Veneto, 9 24042 Capriate San Gervasio (BG)

2026 Tecnocasa Franchising S.p.A. - P. IVA 08365160152 - Via Monte Bianco 60/A 20089 Rozzano (MI). Ogni agenzia ha un proprio titolare ed è autonoma. Privacy policy | Policy utilizzo | Cookie policy